Pulchram Girona
Taiala
Pulchram Girona Taiala
Pulchram Girona Taiala
A grand kick off in Spain: 30.000 m2 implementation to serve the elderly expats and people from Catalunya
A grand kick off in Spain: 30.000 m2 implementation to serve the elderly expats and people from Catalunya
Pulchram Spain has started to develop the project in Q1 2018 and the construction is planned for Q1 2021. The building site is situated in the city of Girona, close to the historical city center. The terrain is characterised by its slope enabling a grand view of the surroundings. The plots perimeter has lushes green with woods and dense
bushes.
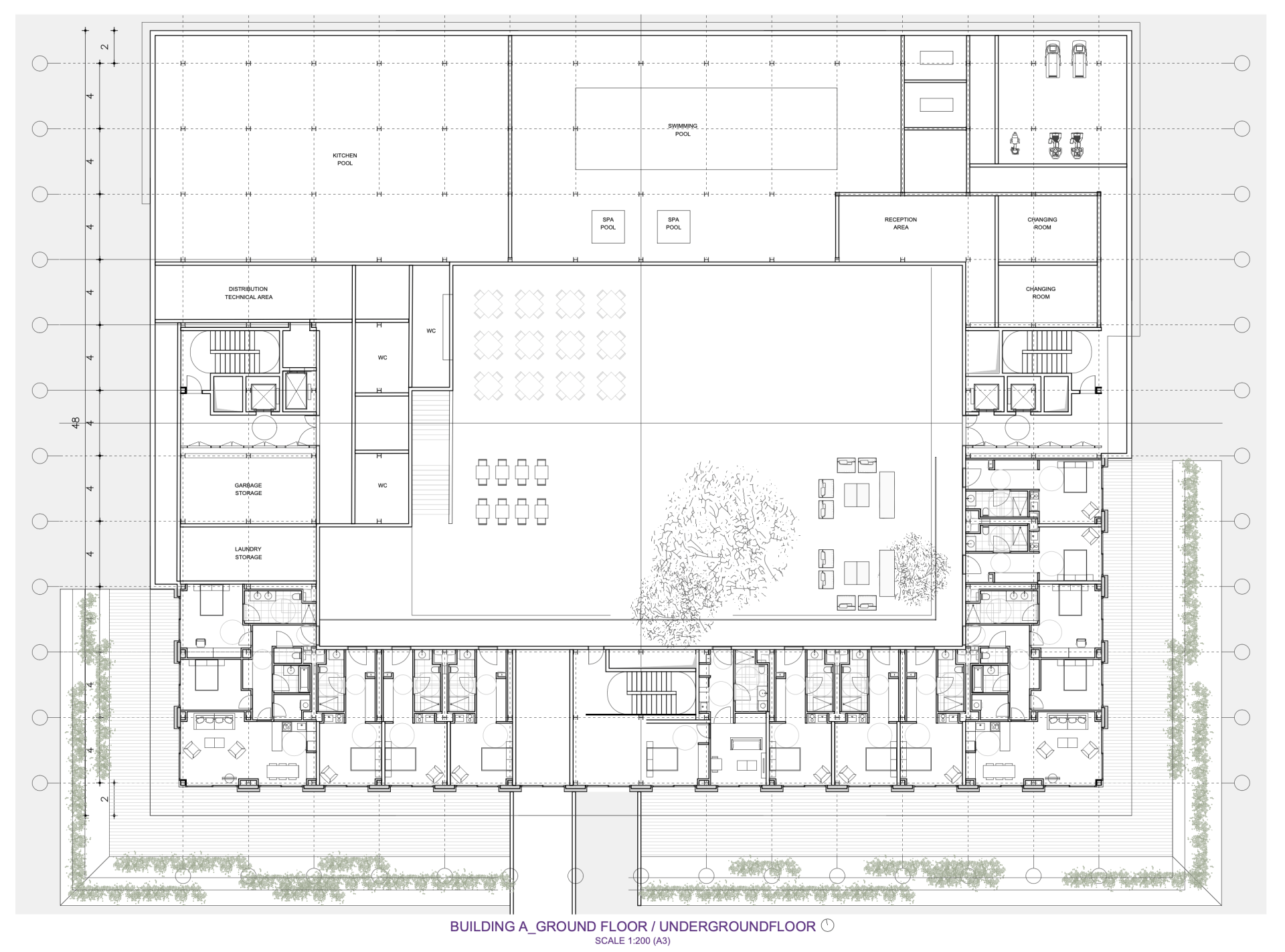
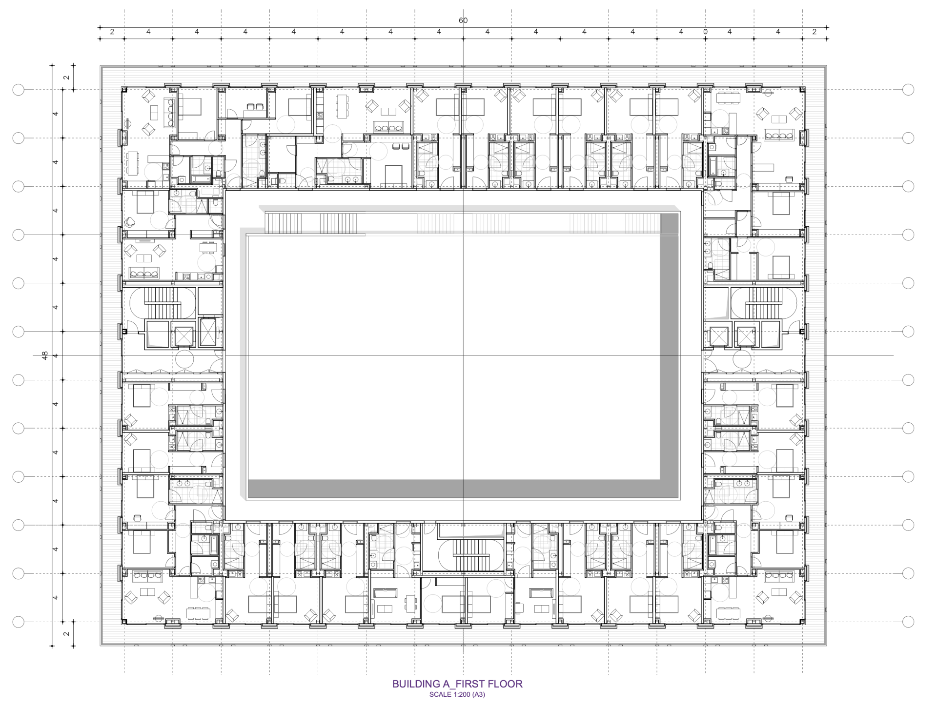
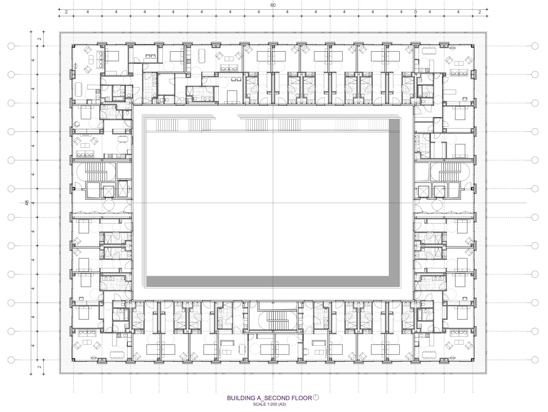
The building plot covers 30.000 m2 and will host 4 main buildings:
- 3 Senior homes (3 x 71 apartments) with assisted living formula allowing residents from 55 years and older.
- 1 Nursing home (24/7 care and close surveillance, 78 apartments) based upon the same design as the senior home but with a higher degree of safety and daily available care.
- A four star hotel. 32 rooms to host visitors, tourists, friends and relatives. All hotel rooms will benefit from the shared facilities available on the complex.
Time line
Time line
The project has commenced in the early 2018 and the international team is now completing the funding to start building the 1st part of the project, building A.
The team has assembled a market study of the elderly care in the Girona region which you can download here.
Additionally, for our real estate relations, we have a detailed overview of the project, where you can also found detailed floor plans of the apartments.
Project sizing
The project will serve the high demand for elderly care housing. Due to the not often equaled size of this development in Spain, it will create new possibilites in terms of efficiences and service level it will operate on.




































